Starbucks Dazaifu Tenmangu Omotesando — Khi gỗ trở thành một dòng chảy
- TrongThuy KTS
- Dec 8, 2025
- 2 min read
Kengo Kuma & Associates, 2011

1. Bối cảnh: Con đường dẫn vào ngôi đền hơn 1.000 năm tuổi
Dazaifu Tenmangu là một trong những ngôi đền linh thiêng nhất Nhật Bản. Tuyến phố Omotesando dẫn vào đền không chỉ là một lối đi; nó là không gian nghi thức, nơi người hành hương chậm lại, quan sát, và chuẩn bị cho khoảnh khắc bước vào vùng tĩnh lặng.

Giữa bối cảnh giàu tính truyền thống ấy, xuất hiện một yêu cầu rất hiện đại: xây dựng một cửa hàng Starbucks.
Thách thức của Kengo Kuma nằm ở hai mặt:
Khu đất hẹp và dài: rộng 7,5m nhưng sâu gần 40m.
Ngữ cảnh lịch sử nhạy cảm: bất kỳ hình thức kiến trúc nào cũng phải “nói nhỏ” với di sản xung quanh.
Thay vì tạo ra một công trình muốn nổi bật, Kuma chọn cách hòa mình vào dòng chảy của con đường.

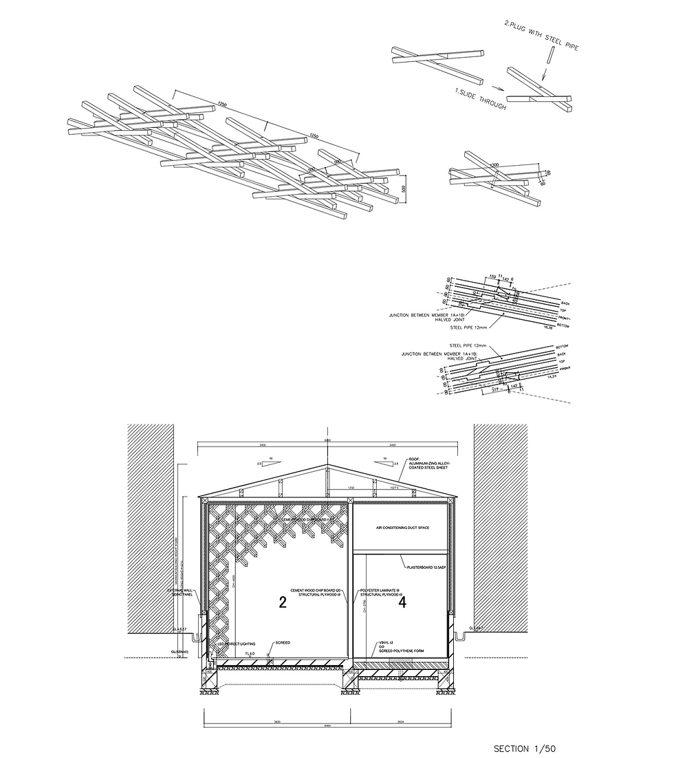
2. Giải pháp thiết kế: Dệt không gian bằng 2.000 thanh gỗ
Điểm nổi bật nhất của công trình là hệ lattice gỗ đan chéo hình chữ X chạy xuyên suốt từ mặt tiền vào đến hết chiều sâu cửa hàng.

Thông số ấn tượng
Khoảng 2.000 thanh tuyết tùng (cedar).
Chiều dài mỗi thanh: 1,3–4m.
Tiết diện: 6cm.
Tổng chiều dài gỗ: 4 km.
Liên kết bằng chốt gỗ, không sử dụng kết cấu thép phô diễn.
Mạng lưới gỗ vừa tạo hình, vừa cấu trúc, vừa tổ chức ánh sáng.
Cách Kuma thực hiện khiến gỗ không còn là vật liệu trang trí; nó trở thành ngôn ngữ hình học định nghĩa toàn bộ không gian.

3. Trải nghiệm không gian: Một dòng khí chuyển động
Khi bước vào cửa hàng, người ta cảm giác như đi trong một đường hầm bằng ánh sáng và gỗ, không có điểm dừng rõ rệt.

Kengo Kuma thường nói về kiến trúc “nhẹ”, “rỗng”, và “thấm”. Không gian Starbucks Dazaifu thể hiện trọn ba triết lý ấy:
Nhẹ – gỗ đan thành một lớp màng, không đóng khối.
Rỗng – không gian mở, không có phân tầng thị giác mạnh.
Thấm – ánh sáng len vào từng khe gỗ, tạo cảm giác chuyển động giống gió.
Điều thú vị là người ta có thể đi dọc 40m mà không hề thấy mỏi mắt; cấu trúc đan gỗ tạo ra nhịp điệu, giúp hành trình trở nên mềm mại.


4. Giá trị kiến trúc: Sự hoà hợp giữa truyền thống và hiện đại
Công trình này thường được nhắc đến như một ví dụ tiêu biểu của kiến trúc đương đại Nhật Bản:
Không áp đặt hình thức.
Không phô diễn công nghệ.
Không cạnh tranh với bối cảnh.
Luôn ưu tiên “khí chất” của nơi chốn.

Starbucks Dazaifu trở nên đặc biệt không phải vì là một cửa hàng cà phê đẹp, mà vì nó hiểu vị trí của mình trong dòng lịch sử.
Kuma không xây dựng một công trình; ông xây dựng một trải nghiệm phù hợp với con đường dẫn vào đền.


Thông tin dự án
Thiết kế & Giám sát: Kengo Kuma & Associates (@kkaa_official)
Chủ đầu tư: Manten Corporation
Năm hoàn thành: 2011
Nhiếp ảnh: Masao Nishikawa


_edited.png)



Comments